Technické parametry
Seznamte se s technickým zázemím sálu HaDivadla – od detailního 3D modelu, přes světelnou a zvukovou výbavu, až po půdorysy a řez sálem. Vše potřebné pro inscenace i návštěvníky, kteří chtějí nahlédnout pod pokličku divadelní techniky.
Modely a výkresy

Sál z ptačí perspektivy
zatažená elevace

Pohled na sál z „tunelu“ vedoucího z foyer
stav se zataženou elevací

Pohled na sál z „příchodu diváků“
stav se zataženou elevací

Pohled na sál z elevace
stav se zataženou elevací

Pohled směrem k „tunelu“

Boční řez
stav s roztaženou elevací

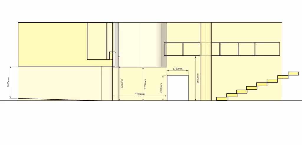
Boční řez
stav se zataženou elevací

Půdorys sálu včetně tunelu
stav s roztaženou elevací

Půdorys sálu včetně tunelu
stav se zataženou elevací